Kompakt. Komfortabel. Kapitalanlage. 1-Zimmer-Appartement mit großer Terrasse in Göttingen-Geismar
Eckdaten
- Art Apartment
- Lage 37085 Göttingen
- Kaufpreis 85.000,00 €
- Hausgeld 340,00 €
- Wohnfläche ca. 29 m²
- Zimmer 1
- Kellerfläche ca. 7 m²
- Baujahr 1972
- Etagenzahl 2
- Denkmalschutzobjekt nein
- Heizungsart Zentralheizung
- Einbauküche ja
- Vermietet nein
- Fahrzeit Hauptbahnhof 15 min
- Fahrzeit nächste Autobahnauffahrt 15 min
- Bodenbelag Laminat Fliesen
- Ausstattung des Bades Dusche
- Zustand Vollständig renoviert
- Immobilien-ID 3239
- Provision 3,57% inkl. MwSt.
Immobilie
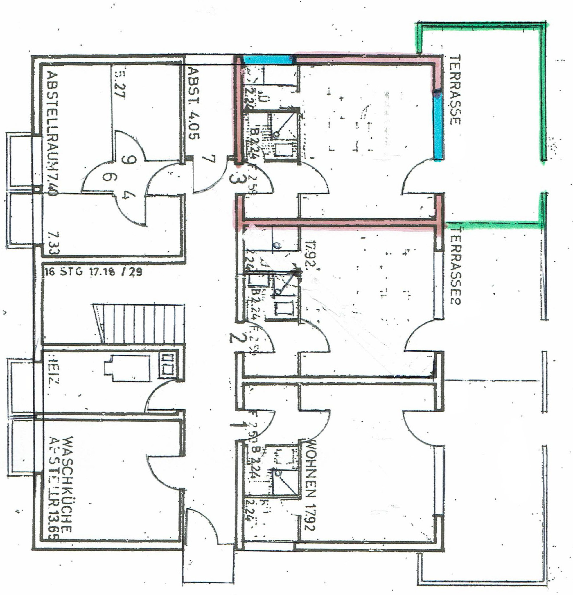
Ihre kleine Wohlfühloase im Grünen – eine Wohnung, die nicht nur Wohnraum bietet, sondern ein Gefühl von Ruhe, Geborgenheit und warmer Lebensqualität. Mit rund 29 m² purer Wohnfläche im Erdgeschoss des gepflegten Mehrfamilienhauses im Kiefernweg im göttinger Stadtteil Geismar, eröffnet sich hier ein Einzimmer‑Apartment, das grundrissoptimiert sowohl für Eigennutzer als auch als tragfähige Kapitalanlage ideal ist.
Schon beim Eintreten empfängt Sie ein praktischer Vorflur, der großzügig Dimensionen für eine Garderobe oder Einbauschrank, praktische Ablagen oder einen kleinen Schuhschrank bietet. Von hier gelangt man in das geflieste Badezimmer mit Dusche – ein funktionaler und zeitgemäßer Start in den Tag.
Der lichtdurchflutete Wohn‑ und Schlafbereich lädt zum Wohlfühlen ein. Hier ist dein Platz für Sofa, Bett, Home‑Office‑Ecke oder kreative Einrichtungsideen. Besonders wertvoll: Von hier aus erreichen Sie direkt deine großzügige Terrasse mit rund 18 m² – ein Sonnendeck für laue Sommerabende, Frühstück im Freien oder einfach ein Platz, an dem man durchatmen kann.
Die praktische Küche ist clever angeordnet und bietet ausreichend Raum für den Alltag.
Die Wohnung wurde frisch renoviert, ist seniorengerecht und mit Laminatboden ausgestattet.
Ein kleiner Kellerraum rundet das Angebot sinnvoll ab und schafft Stauraum für Dinge, die nicht täglich gebraucht werden.
💡 Besonderheiten für Anlegerinnen
Das monatliche Hausgeld beträgt 340 € – dieser etwas höhere Betrag erklärt sich aus dem zuletzt ungewöhnlich hohen Heizkostenverbrauch der früheren Mieterin. Dies ist kein strukturelles Problem der Immobilie, sondern ein Einzelfall – und zukünftige Heizkosten lassen sich durch verantwortliches Nutzerverhalten deutlich optimieren. So bietet dieses Apartment auch auf lange Sicht eine solide Basis für regelmäßige Mieteinnahmen.
Lage
Die Eigentumswohnung liegt in einer ruhigen, grünen Anliegerstraße im beliebten Stadtteil Geismar – ideal für Bewohnerinnen, die Ruhe schätzen, aber nicht auf städtische Infrastruktur verzichten möchten. Im unmittelbaren Umfeld findest du einen Supermarkt, eine Bäckerei und eine Apotheke – alles fußläufig erreichbar. Auch Kindergarten und eine Schule sind nur wenige Minuten entfernt, was die Lage auch für Familien interessant macht. Die tägliche Versorgung ist somit angenehm unkompliziert.
Direkt vor der Haustür hält die Bushaltestelle Kiefernweg, die bequem ins Stadtzentrum führt oder Anschluss an weitere Buslinien bietet – perfekt für Pendler oder Alle, die den ÖPNV nutzen.
Die zentrale Lage von Geismar ermöglicht kurze Wege ins Stadtzentrum von Göttingen, das vielfältige Einkaufs‑, Freizeit‑ und Kulturangebote bereithält – von der pulsierenden Fußgängerzone über Cafés bis zum Bahnhof für Bahn‑Verbindungen in ganz Deutschland.
Und wenn Sie gerne draußen sind: Die Umgebung bietet schöne Spazier‑ und Radwege sowie Naherholungsräume im Grünen – ideal für deine wohlverdiente Auszeit. Egal, ob auf dem Weg zur Arbeit, oder den Feierabend in der Sonne – diese Lage verbindet Lebensqualität mit Alltagstauglichkeit.
Ausstattung
Der Wohnraum und die Küche sind mit Laminatboden ausgestattet, das Badezimmer mit Dusche gefliest.
Eine Einbauküche ist vorhanden. Die Fenster haben Kunststoffrahmen und sind isolierverglast. Der Wohnraum wird / ist mit einem Wandputz versehen.
Die Terrasse mit Kiesschüttung ist ebenerdig zu begehen.
Sonstiges
Unser Service für Eigentümer:
Sie möchten Ihre Immobilie verkaufen oder vermieten? Dann lassen Sie den aktuellen Marktwert Ihrer Immobilie unverbindlich von unseren Experten professionell bewerten. Mit dem persönlichen Charakter unseres Familienunternehmens und unserem weitreichenden nationalen und internationalen Netzwerk bringen wir Verkäufer und Vermieter erfolgreich mit passenden Interessenten zusammen.
Des Weiteren weisen wir auf Folgendes hin:
Als Maklerunternehmen ist die Firma Willmer Immobilien nach § 2 Abs. 1 Nr. 14 und § 11 Abs. 1, 2 Geldwäschegesetz (GwG) dazu verpflichtet, bei der Begründung einer Geschäftsbeziehung die Identität des Vertragspartners festzustellen und zu überprüfen, bzw. sobald ein ernsthaftes Interesse an der Durchführung des Immobilienkaufvertrages besteht. Hierzu ist es erforderlich, dass wir nach § 11 Abs. 4 GwG die relevanten Daten Ihres Personalausweises festhalten (wenn Sie als natürliche Person handeln) – beispielsweise mittels einer Kopie. Bei einer juristischen Person benötigen wir eine Kopie des Handelsregisterauszugs, aus welchem der wirtschaftlich Berechtigte hervorgeht. Das Geldwäschegesetz sieht vor, dass der Makler die Kopien bzw. Unterlagen fünf Jahre aufbewahren muss. Als unser Vertragspartner haben Sie auch eine Mitwirkungspflicht nach § 11 Abs. 6 GwG.
Alle Angaben wurden sorgfältig und so vollständig wie möglich zusammengestellt. Dennoch können Fehler nicht ausgeschlossen werden. Die Angaben basieren ausschließlich auf Informationen, die uns vom Verkäufer bzw. von Dritten zur Verfügung gestellt wurden. Wir übernehmen keine Gewähr für die Vollständigkeit, Richtigkeit und Aktualität dieser Angaben, insbesondere auch hinsichtlich angegebener Flächenmaße. Irrtum und Zwischenverkauf bleibt vorbehalten.
Energieausweisangaben
- Enerigeausweistyp Bedarfsausweis
- Energiekennwert 175 KWh(m²*a)
- Energieeffizienzklasse F
- Energie mit Warmwasser ja
- Energieausweis erstellt am 11.10.2024
- Heizungsart Zentralheizung
- Befeuerung / Energieträger Öl
Herzlichen Dank für Ihre Anfrage.
Wir werden diese so schnell wie möglich bearbeiten.














