Hübsches 1-Zimmer-Apartement mit Terrasse in Göttingen-Geismar
Eckdaten
- Art Apartment
- Lage 37085 Göttingen
- Kaufpreis 85.000,00 €
- Hausgeld 340,00 €
- Wohnfläche ca. 29 m²
- Zimmer 1
- Kellerfläche ca. 7 m²
- Baujahr 1972
- Etagenzahl 2
- Denkmalschutzobjekt nein
- Heizungsart Zentralheizung
- Einbauküche ja
- Vermietet nein
- Fahrzeit Hauptbahnhof 15 min
- Fahrzeit nächste Autobahnauffahrt 15 min
- Bodenbelag Laminat Fliesen
- Ausstattung des Bades Dusche
- Zustand Vollständig renoviert
- Immobilien-ID 3239
- Provision 3,57% inkl. MwSt.
Immobilie
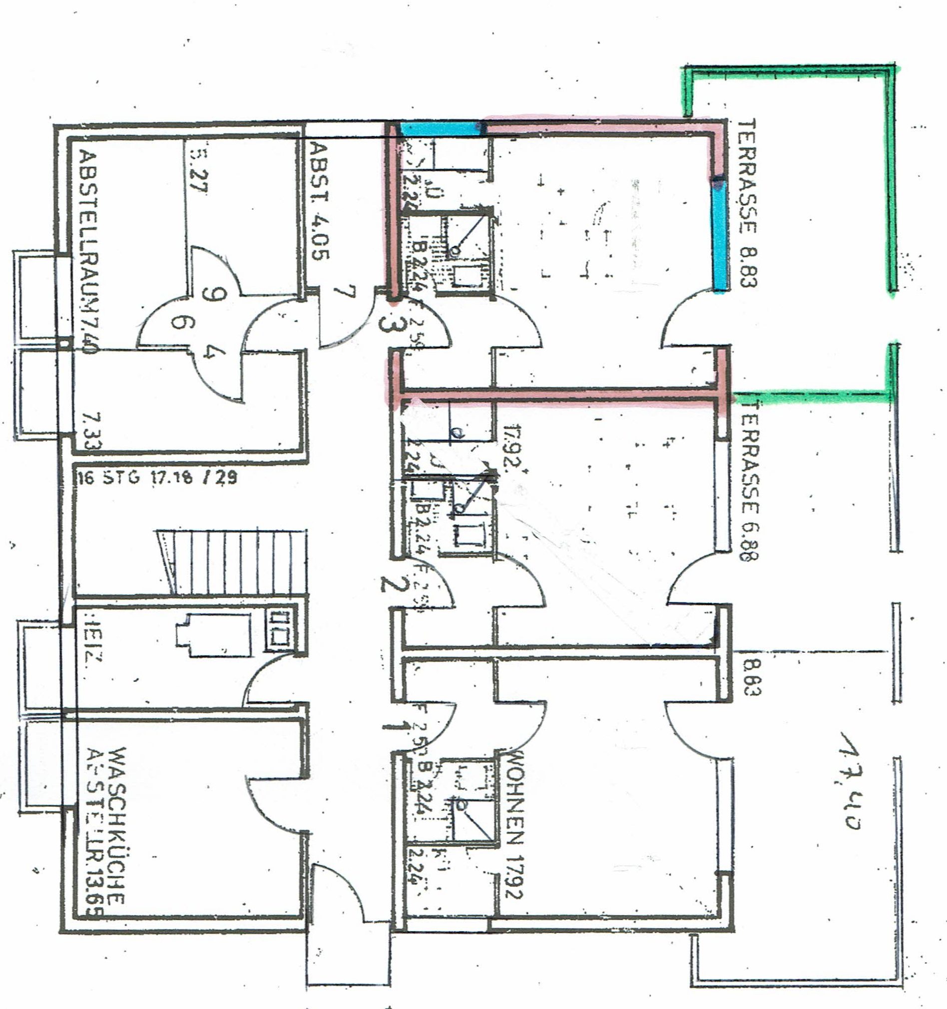
Diese Einzimmerwohnung mit Terrasse und kleiner Einbauküche wird noch einmal neu renoviert und ist dann zur sofortigen Vermietung oder Selbstnutzung frei. Wann findet man schon einmal eine kleine Wohnung, ebenerdig mit Terrasse und in so schöner Lage in Geismar, in einer ruhigen Wohnsiedlung?
In dem gepflegten Wohnhaus wohnen nur 6 Parteien. Jede Wohnung hat einen Keller- Abstellraum, ein gemeinschaftlicher Waschkeller ist ebenfalls vorhanden.
Lage
Göttingen-Geismar, im Kiefernweg.
Ausstattung
Der Wohnraum und die Küche sind mit Laminatboden ausgestattet, das Badezimmer mit Dusche gefliest.
Eine Einbauküche ist vorhanden. Die Fenster haben Kunststoffrahmen und sind isolierverglast. Der Wohnraum wird / ist mit einem Wandputz versehen.
Die Terrasse mit Kiesschüttung ist ebenerdig zu begehen.
Sonstiges
Unser Service für Eigentümer:
Sie möchten Ihre Immobilie verkaufen oder vermieten? Dann lassen Sie den aktuellen Marktwert Ihrer Immobilie unverbindlich von unseren Experten professionell bewerten. Mit dem persönlichen Charakter unseres Familienunternehmens und unserem weitreichenden nationalen und internationalen Netzwerk bringen wir Verkäufer und Vermieter erfolgreich mit passenden Interessenten zusammen.
Des Weiteren weisen wir auf Folgendes hin:
Als Maklerunternehmen ist die Firma Willmer Immobilien nach § 2 Abs. 1 Nr. 14 und § 11 Abs. 1, 2 Geldwäschegesetz (GwG) dazu verpflichtet, bei der Begründung einer Geschäftsbeziehung die Identität des Vertragspartners festzustellen und zu überprüfen, bzw. sobald ein ernsthaftes Interesse an der Durchführung des Immobilienkaufvertrages besteht. Hierzu ist es erforderlich, dass wir nach § 11 Abs. 4 GwG die relevanten Daten Ihres Personalausweises festhalten (wenn Sie als natürliche Person handeln) – beispielsweise mittels einer Kopie. Bei einer juristischen Person benötigen wir eine Kopie des Handelsregisterauszugs, aus welchem der wirtschaftlich Berechtigte hervorgeht. Das Geldwäschegesetz sieht vor, dass der Makler die Kopien bzw. Unterlagen fünf Jahre aufbewahren muss. Als unser Vertragspartner haben Sie auch eine Mitwirkungspflicht nach § 11 Abs. 6 GwG.
Alle Angaben wurden sorgfältig und so vollständig wie möglich zusammengestellt. Dennoch können Fehler nicht ausgeschlossen werden. Die Angaben basieren ausschließlich auf Informationen, die uns vom Verkäufer bzw. von Dritten zur Verfügung gestellt wurden. Wir übernehmen keine Gewähr für die Vollständigkeit, Richtigkeit und Aktualität dieser Angaben, insbesondere auch hinsichtlich angegebener Flächenmaße. Irrtum und Zwischenverkauf bleibt vorbehalten.
Energieausweisangaben
- Enerigeausweistyp Bedarfsausweis
- Energiekennwert 175 KWh(m²*a)
- Energieeffizienzklasse F
- Energie mit Warmwasser ja
- Energieausweis erstellt am 11.10.2024
- Heizungsart Zentralheizung
- Befeuerung / Energieträger Öl
Herzlichen Dank für Ihre Anfrage.
Wir werden diese so schnell wie möglich bearbeiten.














